Nabízíme exkluzivně k pronájmu krásný slunný byt 2+kk o výměře 42 m2 v 7. patře panelového domu na adrese Praha 5, Hlubočepy, Voskovcova ul..
Byt se nachází v panelovém domě na hezkém a kidném místě mezi Prokopským údolím a Chuchelským hájem.
U domu je školka, škola cca 300 metrů. Lékaři na 10 min. vzádlené poliklinice. Ocbchody a zastávka MHD jsou též v místě.
Nedalejo je Aqupark Barrandov.
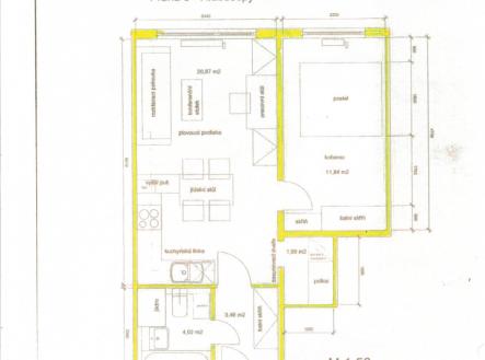
Moderní a slunný byt se nachází v 8 NP (7. patro) . Má obytný prostor spojený s kuchyňským koutem, ložnici, koupelnu s vanou a WC. Přímo v bytě je komora 2 m2, nahrazující sklep.
Byt i dům jsou po rekonstrukci, ve výborném stavu. Byt je plně vybavený a zařízený. Malá domácí zvířátka po dohodě s pronajímatelem.
Pronájem dlouhodobý na 1 rok a déle.
Nájemné 19.000,- Kč + služby, voda 4.094,- Kč pro 2 osoby + elektřina 1.200,- Kč.
KAUCE - 25.000,- Kč
Provize RK - jeden nájem
- Dispozice bytu:2+kk
- Podlaží v domě:7
- Počet podlaží v domě:8
- Celková podlahová plocha:42 m2
- Druh objektu:cihlová
- Stav objektu:dobrý
- Vlastnictví:osobní
- Doprava:vlak; silnice; MHD; autobus
- Elektřina:Elektro - 380 V
- Telekomunikace:Telefon; Internet
- Topení:Ústřední - dálkové
- Odpad:Kanalizace
- Energetická náročnost budovy:C - Úsporná
- Energetický ukazatel
podle vyhlášky:č. 264/2020 Sb. - Počet parkovacích míst:1
